Тип: Кофейня
Локация: Москва, ЖК Ботанический Life, Лазоревый пр-д, 3
Год: 2018
Площадь: 48м
Команда: Николай Ярин, Илья Плотников, Марина Езерская, Андрей Волхонский
Фотограф: Полина Полудкина
Концепция: Cotto - это небольшая локальная кофейня в римском стиле. Образ Рима был выбран не случайно: вечный город, одновременно классический и современный, где любят и хранят традиции приготовления вкусного итальянского кофе. Как и во многих других небольших итальянских кафе, Cotto управляется семьей, поэтому здесь царит особая и приятная атмосфера.
Название: Cotto в переводе с итальянского означает "приготовленный". Кофе готовится. Напиток уже готов - нужно только подойти и забрать его. Вызывает приятные, теплые ассоциации из-за частицы "сот". Слово просто произносится и звучит по-итальянски.
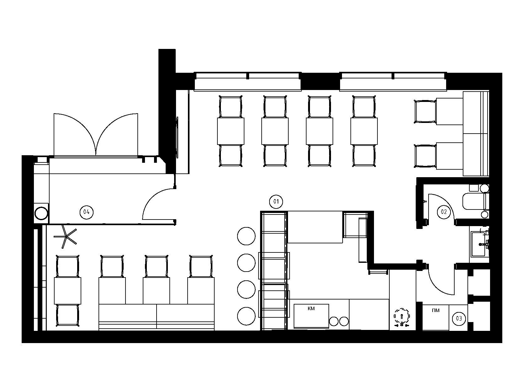
Дизайн интерьера: Планировка помещения предполагает трехкомпонентное зонирование: место у барной стойки, где можно взять кофе-to-go или быстрый эспрессо; посадочные места у окна, где можно комфортно чувствовать себя в центре; уютный уголок, где можно задержаться надолго. Быстрый, средний и медленный кофе. Мы представили, что кофейня - это классический римский зал с лепниной и кессонными потолками с панелями в стиле середины XX века, а затем в него интегрировали современные элементы, такие как геометрическая барная стойка и вентиляционный короб на потолке. От античной классики через авангардный дизайн 60-х годов к современности. Большинство материалов и элементов интерьера так или иначе связаны с Италией - декоративная штукатурка, итальянская сантехника фирмы Simas, фарфоровая посуда. Ванная комната выделяется из общей концепции, но продолжает тему Италии - массивная плитка из каррарского мрамора, непропорционально большие круглые светильники от Ideal Lux, Милан.
Фирменный стиль: В качестве фирменных цветов мы выбрали римский флаг. Намеренно игривый логотип в сочетании с геометрическим фирменным шрифтом напоминает о внутренних контрастах Италии и Рима. Фирменный стиль и элементы дизайна интерьера имеют общие черты: большие круглые наклейки с логотипом на окнах и светильниках-сферах, наклейки на карточке постоянного клиента и отверстия в стеновых панелях.
Название: Cotto в переводе с итальянского означает "приготовленный". Кофе готовится. Напиток уже готов - нужно только подойти и забрать его. Вызывает приятные, теплые ассоциации из-за частицы "сот". Слово просто произносится и звучит по-итальянски.
Дизайн интерьера: Планировка помещения предполагает трехкомпонентное зонирование: место у барной стойки, где можно взять кофе-to-go или быстрый эспрессо; посадочные места у окна, где можно комфортно чувствовать себя в центре; уютный уголок, где можно задержаться надолго. Быстрый, средний и медленный кофе. Мы представили, что кофейня - это классический римский зал с лепниной и кессонными потолками с панелями в стиле середины XX века, а затем в него интегрировали современные элементы, такие как геометрическая барная стойка и вентиляционный короб на потолке. От античной классики через авангардный дизайн 60-х годов к современности. Большинство материалов и элементов интерьера так или иначе связаны с Италией - декоративная штукатурка, итальянская сантехника фирмы Simas, фарфоровая посуда. Ванная комната выделяется из общей концепции, но продолжает тему Италии - массивная плитка из каррарского мрамора, непропорционально большие круглые светильники от Ideal Lux, Милан.
Фирменный стиль: В качестве фирменных цветов мы выбрали римский флаг. Намеренно игривый логотип в сочетании с геометрическим фирменным шрифтом напоминает о внутренних контрастах Италии и Рима. Фирменный стиль и элементы дизайна интерьера имеют общие черты: большие круглые наклейки с логотипом на окнах и светильниках-сферах, наклейки на карточке постоянного клиента и отверстия в стеновых панелях.
Interior design:
Branding:
Photos by Polina Poludkina
Thank you!